Linear Conveyor Host and Power Panel

PROJECT DESCRIPTION

Shift Controls was approached to design a control panel and power panel to control a robotic, high-precision linear conveyor manufacturing system. The panels were designed to be modular where the communication host module, and safety relay, EtherNet/IP gateway, and safety signal distribution would be contained in a “host” panel. The host panel would perform the processing, be the communication hub, and also contain the safety relay controller for the satellite power panels. The power panels would contain the DC power supplies and power the drivers for the individual linear conveyor controllers.

Safety Design

The panels were designed with safety as a priority since it would be controlling motion components. The system was designed with a local E-Stop switch, an E-Stop reset switch, safety relay, and terminal blocks so that the enabling paths could be daisy chained to the satellite power panel(s). The safety relay was specified to have an off-delay function so that the host could communicate a stop command to the linear drivers so they could perform a power deceleration before the power to the drivers was de-energized. The safety monitoring path was wired to the host controller’s CPU OK relay contacts so the system could only be enabled after the host controller powers up and does not detect a fault.

Electrical Design

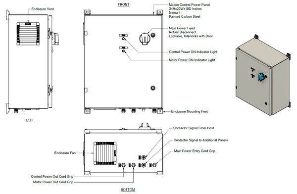
Both the host panel and the power panel were designed with door mounted rotary disconnects which interlock the door from being opened when the main disconnect is ON. Power distribution incorporated a main breaker, a mains high performance power filter, and UL489 branch circuit protection breakers. 

This specific robotic controller series needed a very specific bootup sequence where the host CPU needed to boot and be online before the satellite drive controllers were powered on. This was accomplished with the addition of a delay relay and having the safety relay monitor the CPU status and E-Stops before sending the power panels an energize signal.  

The modular power panel included two large DC power supplies specific to the robotic controller. Each power supply have individual current protection, a safety contactor, and output field terminal blocks. The safety contactors were controlled by the host panel. Additional power panels could be added to the system by simply daisy chaining the safety enable signal to additional power panels.

Shift Controls developed mechanical drawings and wiring diagrams for project approval to ensure all the design requirements were met before construction began. 

Environmental Requirements

The panel was to be located in an air conditioned, clean, manufacturing space. While environmental conditions were ideal, there would be a large amount of heat produced by the power supplies and other internal components. Heat calculations were performed and a fan, vent, and thermostat were specified to ensure each panel’s internal temperature did not exceed the maximum allowable temperature ratings of the components (50°C).

Field Sensor Integration

Shift Controls prioritizes ease of field  installation for all of its designs and this panel was designed to have all the field terminations located on the bottom of the enclosure. Labeled terminal blocks or pre-installed connectors were used to interface between the field devices and the panels. This allowed the customer to simply land the field wires on labeled terminal blocks or run off-the-shelf extension cable assemblies. 

Outcome

The system was fully commissioned at Shift Controls before the panel shipped to the customer to ensure the system operated as designed before the install. The customer was extremely satisfied with the design and how the system operates.

Custom Designs

Shift Controls has extensive experience in designing and fabricating custom UL508A panels to meet the most difficult design and environmental requirements. Like this project, we listen to your specific project requirements and custom design a system that meets your process and cost requirements. As always, feel free to contact us regarding your project or if you have any questions.

`